Wrocław, Fabryczna, Maślice, Rędzińska

Mieszkanie na sprzedaż

Opis nieruchomości

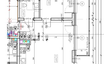
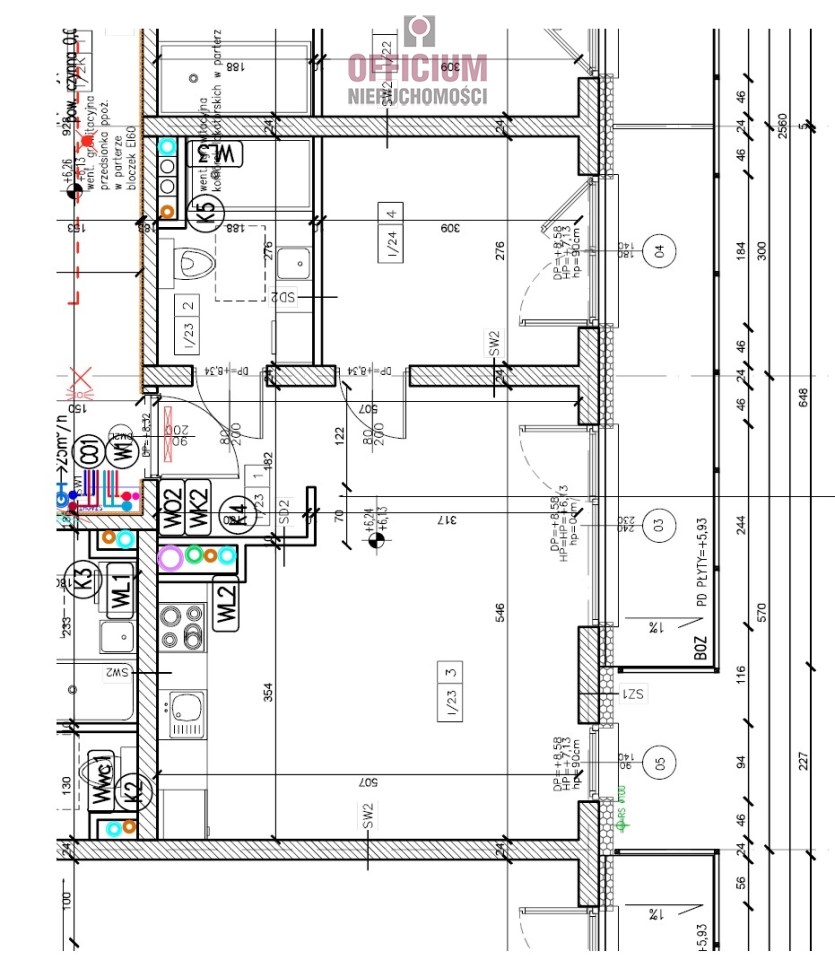
Gotowe mieszkanie w stanie deweloperskim, dwupokojowe z balkonem.
Powierzchnia mieszkania 39,56 mkw plus balkon 7 mkw łączący oba pokoje.
Bardzo dobrze zaprojektowane mieszkanie - zobacz rzut
  • Duży pokój z aneksem ma 5 metrów szerokości !  jest jasny, przestronny i ustawny,
  • w przedpokoju miejsce na dużą szafę,
  • łazienka jest duża,
  • sypialnia ma podwójne okno witrynę oraz wyjście na balkon.
Inne udogodnienia:
  • Ogrzewanie miejskie, woda, prąd
  • Winda.
  • Mieszkanie środkowe - ciepłe, II piętro
  • Mieszkanie odebrane od dewelopera, na gwarancji wg starych korzystniejszych zasad!
  • Miejsce postojowe w garażu podziemnym przynależne do mieszkania.
Kameralny budynek czteropiętrowy, jedno-klatkowy, tylko 4 mieszkania na piętrze
W pobliżu park, stadnina koni, Lidl, Rossmann, stadion
Dojazd komunikacją miejską autobusową, w planie budowa linii tramwajowej.

Budynek zamieszkały - unikasz remontów sąsiadów!
Księga wieczysta bez obciążeń - możesz od razu zabezpieczyć swój kredyt hipoteką

Cena mieszkania 530000 zł + miejsce postojowe 30000 zł 
KUPUJESZ BEZ PROWIZJI 
Jeśli to Twoje pierwsze mieszkanie nie płacisz podatku PCC
Zadzwoń i zapytaj 

Numer oferty w biurze OFN-MS-13741
Niniejsza oferta, nie jest ofertą handlową w rozumieniu Kodeksu Cywilnego
OFFICIUM-NIERUCHOMOŚCI, Dorota Kamecka-Skiba tel. 502 504 710, Pośrednik licencja 10411, Rzeczoznawca Majątkowy licencja 5010

więcej ofert www.officium-nieruchomosci.pl
Wszystkie prawa autorskie zastrzeżone. Kopiowanie, publikowanie, publiczne rozpowszechnianie czy powielanie wszelkich materiałów - w tym zdjęć, grafik, tekstów bez pisemnej zgody Officium Nieruchomości  jest zabronione.
 Nasz kanał YT www.youtube.com/@OfficiumNieruchomości
 

Nota prawna

Opis oferty zawarty na stronie internetowej sporządzany jest na podstawie oględzin nieruchomości oraz informacji uzyskanych od właściciela, może podlegać aktualizacji i nie stanowi oferty określonej w art. 66 i następnych K.C.

Szczegóły oferty

Symbol oferty OFN-MS-13741
Powierzchnia 39,56 m²
Powierzchnia użytkowa 39,56 m²
Powierzchnia balkonów/tarasów 7,00 m²
Liczba pokoi 2
Piętro 2
Rodzaj budynku apartamentowiec
Liczba pięter w budynku 4
Garaż garaż pod budynkiem
Stan lokalu deweloperski
Mies. czynsz admin. 760 PLN
Balkon jest
Winda tak

Lokalizacja

Kalkulator kredytowy

PLN
%
Wysokość raty

Kalkulator kosztów

PLN
PLN
PLN
PLN
PLN
PLN
%
PLN
Podatek od czynności cywilno-prawnych
Taksa notarialna (opłata notarialna)
VAT od taksy notarialnej (opłaty notarialnej)
Wniosek do WKW
VAT od wniosku do WKW
Prowizja agencji nieruchomości
VAT od prowizji agencji nieruchomości
Wypisy aktu notarialnego - około
RAZEM (cena + opłaty)

Podobne oferty

mieszkanie na sprzedaż - Wrocław, Psie Pole, Różanka, Bezpieczna

mieszkanie na sprzedaż

Wrocław, Psie Pole, Różanka, Bezpieczna
3 pokoje 53,90 m2 11 317,25 zł/m2
nowa oferta
mieszkanie na sprzedaż - Wrocław, Krzyki, Klecina

mieszkanie na sprzedaż

Wrocław, Krzyki, Klecina
3 pokoje 37,50 m2 11 386,67 zł/m2

Napisz do nas

Proszę wypełnić to pole
Proszę wypełnić to pole
Proszę wypełnić to pole
Proszę wypełnić to pole
Trwa wysyłanie...

Ta strona wykorzystuje pliki cookies w celach statystycznych oraz w celu dostosowania naszych serwisów do indywidualnych potrzeb klientów. Zmiany ustawień dotyczących plików cookie można dokonać w dowolnej chwili modyfikując ustawienia przeglądarki. Korzystanie z tej strony bez zmian ustawień dotyczących cookies oznacza, że będą one zapisane w pamięci urządzenia.

rozumiem